Gite De Recoules
Preview only — see all hotel photos
See all 46 photos 1 /
46
9.5
4评论
Best options for your travel dates
在地图上显示酒店
Gite De Recoules
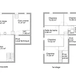
Gite De Recoules拥有1间卧室,步行不到25分钟就能到Saint-Pierre-et-Saint-Michel. 这间住宿提供带咖啡机/煮茶器 和电视的客房,可以满足您一切居住需求.
从住所到Recoules D'Aubrac中心大约1公里. 它距离Baby Lift有不到10分钟的车程. 该别墅距离芒德大概43公里. 别墅毗邻Eglise Sainte-Marie de Nasbinals.
别墅内的1间浴室可供客人使用.
每个房间都配有大厨房. De Mende-Brenoux机场距别墅店约65公里. 别墅提供的体验设施包括徒步旅行,让您享受愉快的居住期间.
更多 +
收起 -
请等以下,我们给您检查可提供的客房.
搜寻酒店
设施
主要设施
- 无线网络连接
- 活动
- 不允许携带宠物
客房设施
概况:
- 非吸烟区
- WiFi
- 不可以携带宠物
- 烟雾报警器
运动及休闲:
- 花园
- 徒步旅行
客房设施:
- 园林家具
- 茶具和咖啡机
- 熨烫设备
政策
入住时间: 16:00至19:00
离店时间: 10:00以前
地图
当地名胜古迹
机场
- de Mende-Brenoux (61公里)
评论
发表点评
100%真实住客点评
9.5 /10